SIGN UP CUSTOMER LOGIN
Main Photo

5 Total Photos [Click to View All]

Main Photo
Main Photo

1453 E 65th Place Chicago, IL 60637

$150,000
Active / MLS# 12392229 / Land - Farm / Chicago
0 Beds

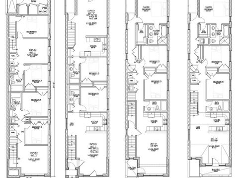
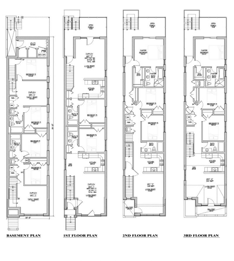
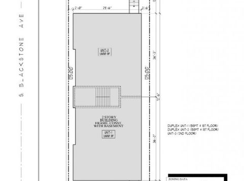
Terrific land opportunity in the East Woodlawn neighborhood. Prime (4,374 sqft) corner location in an area that is rapidly developing. Zoned RM-5 for residential use, this site is perfect for a multi-unit development (see example rendering). Ideal location near Jackson Park, the lakefront, and the Obama Presidential Center. Surrounded by new construction-this is your chance to be part of the neighborhood's transformation. Drive-by only.

Read More » Read Less »

Baird & Warner EWA BADZIOCH Email

Mortgage Calculator

%
years/fixed
yearly
yearly (est.)
(Payments are an estimate and may vary by lender)

Estimated Payment

$ 447.17 per month $333.33 Principal & Interest $70.08 Property Tax $43.75 Homeowner's Insurance
Get your competitive financing options.

Property Details

Property Type: Land - Farm
Lot Size: 35 X 125
Taxes: $841

Feature Descriptions

Current Use: Agricultural
Frontage: 35
Frontage Type: City Street
Lot Dimensions: 35 X 125
Parcel#: 20232200400000
Road Surface: Asphalt
Township: Hyde Park
Utilities: Unknown (verify)

Schools

School District: District 299

Disclaimer: The accuracy of all information regardless of source, including but not limited to square footage and lot size, is deemed reliable but not guaranteed nor warranted and should be personally verified through personal inspection by and/or with the appropriate professionals.

Location

See details and scored characteristics about this location.

Listing Office: Fulton Grace Realty

Listing Office Phone: 773-698-6648



Listing data and photos distributed by MLSGRID
Member Participants (and their affiliated licensees, if applicable) shall indicate on their websites that IDX information is provided exclusively for consumers’ personal non-commercial use, that it may not be used for any purpose other than to identify prospective properties consumers may be interested in purchasing, that the data is deemed reliable but is not guaranteed by MLS GRID, and that the use of the MLS GRID Data may be subject to an end user license agreement prescribed by the Member Participant’s applicable MLS if any and as amended from time to time. MLS GRID may, at its discretion, require use of other disclaimers as necessary to protect Member Participant, and/or their MLS from liability.
Based on information submitted to the MLS GRID. All data is obtained from various sources and may not have been verified by broker or MLS GRID. Supplied Open House Information is subject to change without notice. All information should be independently reviewed and verified for accuracy. Properties may or may not be listed by the office/agent presenting the information.


Login to my Baird & Warner account

Pixel